


Арт.
Данный объект Вы можете приобрести в ипотеку на самых выгодных условиях от выбранного вами Банка, нашего партнера! Возможны такие сбалансированные условия от Сбербанка по ипотеке как первое, 10% первоначального взноса и, одновременно второе, ипотечная ставка в 14%.
Продается расположенный в д. Лужки кирпичный дом площадью 272,6 кв. м. в заповеднической зоне Московской области.
Лучшая локация в Серпуховском районе, самое спокойное и престижное местоположение.
На земельном участке 25 кв. м. Категория участка "ЛПХ". Вид разрешенного использования участка: для индивидуального жилищного строительства. Вблизи доступна вся городская инфраструктура города Серпухов.
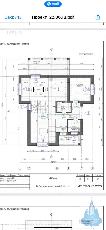
Помещения дома:
Площадь жилых помещений составляет 180 кв. м. Все спальни имеют изолированную планировку. Внутренняя отделка дома выполнена из премиальных отделочных материалов.
Отдельно построена баня и гараж . В бане есть большой бассейн который уже залит под плитку
Кроме указанных помещений в домеасполагаются: Постирочная, Топочная, Хозяйственная комнаты и кладовое помещение.
В доме круглый год комфортная температура, так как в дом заведен газ. По нормативам устроено тёплые полы.
Дом без отделки ,сделана стяжка пола, стены оштукатурены но это лучше так как вы сможете сделать ремонт под себя .
Импортный газовый котел большой мощности, обеспечивает с запасом и отопление, и стабильное горячее водоснабжение. В дополнение имеется мощный электрический водонагреватель.
Центральные поселковые коммуникации: Канализация,, Водоснабжение, Электроснабжение.
В доме имеется проводная линия Интернет.
Монолитный ребристый фундамент для дома выбран как самый надежный и жесткий из возможных видов фундаментов, наиболее подходящий для долговечных каменных домов.
Кровля: гибкая черепица.
Место во дворе с твердым асфальтовым покрытием имеется возможность припарковать дополнительно не менее пяти автомобилей.
Участок без забора.
Контроль окружения дома обеспечивают видеокамеры по периметру участка и дома.
Лёгкая транспортная доступность, выезд на автомобиле на Федеральную трассу М-2 (Крым) составляет около часа.
Один взрослый собственник. Свободная продажа. Подготовлен комплект документов для сделки.
Для приобретения данного дома с земельным участком в ипотеку оформите заявку в нашем офисе. Банки партнеры Сбербанк, ВТБ, Газпромбанк, Альфа банк, Росбанк, Дом РФ. Покупая квартиру с компанией Семь Высоток, вы получаете: безопасность сделки, максимально выгодную ставку по ипотечному кредитованию, а также гарантийный сертификат юридической чистоты объекта недвижимости сроком на 3 года. Все наши сделки застрахованы компанией РЕСО-Гарантия.
17000000 руб. | 257544 $ | 225698 €